CALYPSO APARTMENTS — A9 АПАРТАМЕНТЫ
Ханья | Район Лентариана
ОПИСАНИЕ НЕДВИЖИМОСТИ
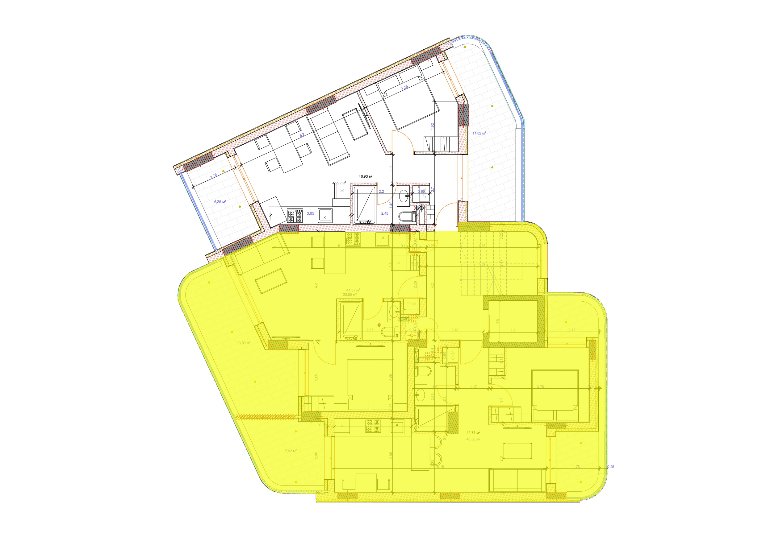
Расположенная в тихом и хорошо связанном районе Лентариана, эта квартира площадью 45,97 кв.м. предлагает светлые и функциональные жилые помещения. Открытая кухня и гостиная выходят на огромную веранду с одной стороны и просторный балкон с другой, обеспечивая отличное естественное освещение и открытое пространство. Из спальни также есть прямой выход на веранду, а также есть современная, хорошо оборудованная ванная комната. Идеальный выбор для уютного дома или разумной инвестиции недалеко от центра Ханьи.
Технические характеристики
ЗВУКОИЗОЛЯЦИЯ: ТЁПЛЫЙ АЛЮМИНИЕВЫЙ ПРОФИЛЬ С ТЕРМОРАЗРЫВОМ
ВНЕШНЯЯ ИЗОЛЯЦИЯ: ТЕРМИЧЕСКИЙ ФАСАД
КОЛИЧЕСТВО ЖИЛЫХ ДОМОВ: 1
СТЕНЫ: МИНЕЙСКИЙ ОРТОБЛОК
КОЛИЧЕСТВО КВАРТИР: 9
ВЫСОТА ПОТОЛКА: 2,70 м (ОТ ПОЛА ДО ПОТОЛКА)
СОСТОЯНИЕ КВАРТИРЫ: ПОЛНОСТЬЮ ЗАВЕРШЕНО К КОНЦУ 2026 ГОДА
МИКРОКЛИМАТ: FAN COIL SPLIT UNIT
ЭТАЖНОСТЬ: 4
ТЕХНОЛОГИЯ СТРОИТЕЛЬСТВА: МОНОЛИТНАЯ КОНСТРУКЦИЯ
ПАРКОВОЧНЫЕ МЕСТА: 9
ЛИФТ: ЭТАЖ ПАРКОВОЧНЫХ МЕСТ — МЕСТА ОБЩЕГО ПОЛЬЗОВАНИЯ
КУХНЯ И ШКАФЫ: СПЕЦИАЛЬНО РАЗРАБОТАННЫЙ ДИЗАЙНЕРАМИ
КОНДИЦИОНЕРЫ: FAN COIL SPLIT UNIT (ОБОГРЕВ И ОХЛАЖДЕНИЕ С ПОМОЩЬЮ ЕДИНОЙ СИСТЕМЫ КОНДИЦИОНИРОВАНИЯ)
ЭНЕРГОЭФФЕКТИВНОСТЬ: Α++
Описание месторасположения
Лентариана — это перспективный и быстро развивающийся район в Ханье, расположенный всего в нескольких минутах езды (около 5–10 минут) от центра города. Близость к ключевым районам, таким как Старый город, порт Суда и международный аэропорт Ханьи, делает его очень удобным местом как для жителей, так и для гостей города. Район хорошо обслуживается местными удобствами, включая супермаркеты, пекарни, традиционные магазины и даже культурные объекты, такие как театр Лентариана. Он также известен как тихий, спокойный и очаровательный район, предлагающий более расслабленную атмосферу по сравнению с более оживленными частями Ханьи. С ростом интереса к инвестициям как в жилую недвижимость, так и в краткосрочную аренду, Лентариана предлагает отличный потенциал для прироста капитала. Она сочетает в себе очарование тихого местного сообщества с легким доступом к оживленной городской жизни, что делает ее привлекательным вариантом для инвесторов, ищущих ценность, удобное расположение и долгосрочный рост.
Греция | Западный Крит | Ханья | Лентариана
- Ближайший пляж: 1,4 км (5 мин)
- Рестораны и кафе: 500 м (5 мин)
- Город Ханья: 500 м (5 мин)
- Аэропорт Ханьи: 13 км (18 мин)
- Морской порт Суда: 5 км (10 мин)
- Аэропорт Ираклиона: 139 км (2 часа)
